Wohnimmobilie > Einfamilienhaus
Zu Verkaufen
Hurra - wir ziehen aufs Land !
96.000 €
A1506
143 m²
1.003 m²
5
-
hier wohnen Sie in sonniger Höhenlage im Naturpark Spessart. Im eigenen Garten ernten Sie Kirschen oder Walnüsse. In der Scheune gibt es genug Lagerplatz – auch für das Brennholz . Als Ortsbewohner können Sie ihr „Rechtlerholz“ beziehen.
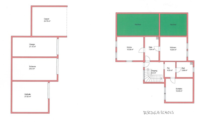
Dieses ältere Anwesen liegt am Feldrand unweit zum beginnenden Spessartwald. Es bietet ca. 140 qm Wohnfläche auf 2 Ebenen (EG +DG).
Zum Anwesen gehören 1 großer Carport, große Garage, Scheune und Holzhalle. Unweit vom Haus liegt das eingezäunte Gartengrundstück.
Zum Anwesen gelangt man über 2 vorgelagerte Höfe (Geh- und Fahrrecht). Beheizt wird es mit Nachtspeicheröfen + Holzöfen.
In der Küche kann auf dem Küchenherd gekocht werden. Die geräumigen Nebengebäude bieten Platz für div. Hobbys.
Das Badezimmer (mit Fenster) wurde bereits saniert. Sonst normaler Renovierungsstau. Die Speicherdecke sollte noch gedämmt werden.
Das genaue Baujahr ist nicht bekannt – in den 70zigern wurde das Haus um- und angebaut. Das Haus ist an das untere Haus angebaut bzw. überbaut bzw. unterbaut.
Auf den Fotos ist das Nachbarhaus gelb gestrichen. -
Flächen
- Wohnfläche: 143 m²
- Grundstücksfläche: 1.003 m²
- Zimmer insgesamt: 5
Sonstiges
Bischbrunn-Oberndorf liegt in Höhenlage des Naturpars Spessart auf ca. 395 m Höhe und gehört zum Landkreis Main-Spessart. Die Grunddörfer Esselbach, Bischbrunn und Oberndorf haben zusammen ca. 4.000 Einwohner.
Über die Bundesautobahn A3 ist Oberndorf gut erreichbar über die Ausfahrt „Rohrbrunn“ oder die Ausfahrt „Marktheidenfeld“. In Esselbach befindet sich ein E-Center-Markt und Bäcker
und Metzger sind vor Ort. Die Grundschule in Oberdorf wurde vor Kurzem generalsaniert.
Hauptschule, Realschule und Balthasar-Neumann-Gymnasium befinden sich in der ca. 8 km entfernten Stadt Marktheidenfeld. -
Bad mit Fenster, Einzelgarage, Elektro-Nachspeicherheizung, Garten, Kaminofen, Pkw-Stellplatz im Freien, Carport
- Befeuerung: Elektro
-
- Energieausweis-Art: Bedarf
- Energieausweis gültig bis: 21.10.2035
- Endenergiebedarf: 289,00 kWh/(m²*a)
- Primärenergieträger: Strom, Holz
- Energieeffizienzklasse: H
- Energieausweis-Ausstellungsdatum: 21.10.2025
- Energieausweis-Jahrgang: ab Mai 2014
- Energieausweis-Gebäudeart: Wohngebäude
-
-
- Kaufpreis: 96.000 €
- Preise zuzüglich Mehrwertsteuer: nein
- Käuferprovision: 3,57% Käuferprovision incl. MWSt.












































