Wohnimmobilie > Wohnung
Zu Verkaufen

zentrumsnah in Mainnähe wohnen !

97828 Marktheidenfeld
245.000 €

A1515
1980
94 m²
3
  • Nutzen Sie diese Gelegenheit !!!

    Nur selten ergibt sich diese Gelegenheit, in Marktheidenfeld eine Wohnung in dieser Wohnanlage zu bekommen.
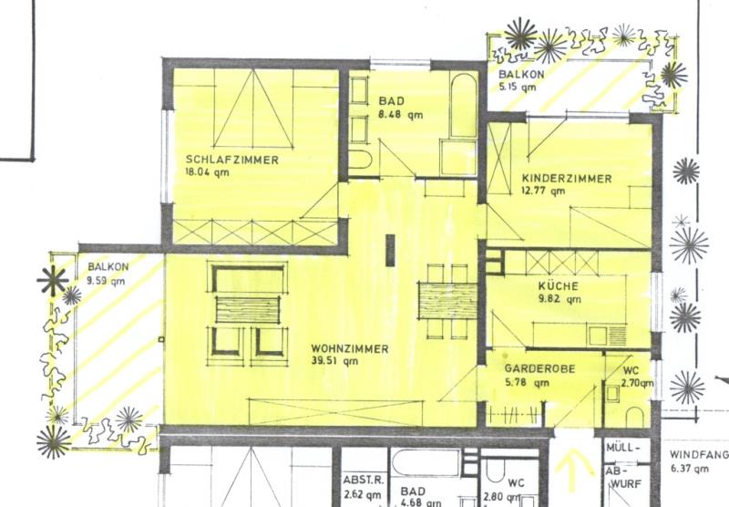
    Diese großzügig gebaute 3-Zimmerwohnung befindet sich auf der Westseite des Gebäudes
    im Erdgeschoß.
    1980 wurde die Wohnanlage von Architekt Hagenbucher mit hohem Qualitätsbewußtsein großzügig geplant. Die Wohnungstrennwände wurden als aufwendiges, 2-schaliges Mauerwerk ausgeführt, um max. Schalldämmung zu erreichen. Die Außenwände wurden als Ziegelmauerwerk mit Vollwärmeschutz (5 cm) ausgeführt. Das geräumige Treppenhaus verfügt über einen Aufzug. Der Hauszugang wurde in den letzten Jahren behindertengerecht umgebaut, um einen barrierefreien Zugang zum Haus und zur Wohnung zu ermöglichen.
    Die Wohnung ist mit einem zeitgemäßen Laminatfußboden ausgelegt. Die Zimmertüren wurden bereits erneuert (Ahorn). Vom großzügigen Wohn- Esszimmer (39 qm) erreicht man über die breite Schiebetüre den geschützen und überdachten Süd-Westbalkon
    Zur Wohnung gehören 2 Balkone (Wohnzimmer + Gästezimmer) mit umlaufenden Pflanztrögen. Das große, gepflegte Bad sowie das Gäste-WC ist mit einem Fenster belichtet und wurde bereits saniert; beheizt wird die Whg. mit einer Gas-Etagenheizung mit darunter stehendem Warmwasserboiler; Zur Whg. gehört ein KFZ-Stellplatz im Freien. Energieverbrauchskennwert: 155,64 kWh/(qm-a) Kat. E.
    Wer Abens einen Schoppentrinken möchte, kann das Auto stehen lassen, da das Stadtzentrum fußläufig in wenigen Minuten zu erreichen ist – zum Spazierengehen oder Radfahren lädt das nahegelegene Mainufer mit urigem Biergarten ein.
    Zur Zeit ist die Wohnung gut vermietet. Die abgebildete Einbauküche gehört zur ETW.

    Überzeugen Sie sich selbst bei einen Besichtigungstermin von dieser schönen Eigentumswohnung !
  • Flächen

    • Wohnfläche: 94,14 m²
    • Zimmer insgesamt: 3

    Zustand & Erschließung

    • Baujahr: 1980

    Sonstiges

    Marktheidenfeld – „Da geht’s Dir gut!“ Die schöne Stadt am Main bietet mit ihren zahlreichen Freizeit-, Sport-, Einkaufs- und Kulturangeboten die idealen Voraussetzungen für einen abwechslungsreichen und erholsames Wohnen. Historische Fachwerkhäuser, malerische Gässchen und moderne Architektur vereinen sich mit liebenswürdigen kleinen und großen Geschäften, Cafés, Gaststuben und Hotels. Besonders sehenswert sind die St. Laurentius-Kirche und das barocke Franck-Haus mit seiner leuchtend blauen Farbe.
    Die Stadt, im Herzen Deutschlands mit direkter Anbindung an die Autobahn A3 zwischen Frankfurt und Würzburg am Mainviereck gelegen, ist zudem idealer Ausgangspunkt für abwechslungsreiche Wander- und Radtouren durch das Maintal, den Spessart und das Fränkische Weinland. Spaß und Erholung für die ganze Familie bietet die Erlebnistherme Wonnemar.
    Hotels und Pensionen, Ferienwohnungen und Gästezimmer warten auf Sie. Die vielfältige Gastronomie verwöhnt den Gourmet ebenso wie den Liebhaber kräftiger Hausmannskost. Köstlicher Frankenwein oder ein frisch gezapftes Bier der ortsansässigen Martinsbräu gepaart mit fränkischer Gastfreundschaft sorgen dafür, dass Sie sich in Marktheidenfeld rundum wohlfühlen. Das pulsierende Mittelzentrum mit ausgezeichneten Zukunftsprognosen ist ein Magnet für Jung und Alt.

    Bevölkerungszahl: ca. 11.900 (Stand Nov. 2017) * sozialversicherungspflichtige Arbeitsplätze 9.660
    * Berufs-Einpendler 5.227
    Bildung und Ausbildung
    * 5 städtische Kindertagesstätten * Integrativer Kindergarten der Lebenshilfe * Waldkindergarten * Kinderhaus in Altfeld (mit 24 Std.- und 7-Tage-Betreuung) * Friedrich-Fleischmann-Grundschule (mit dem Angebot der Mittagsbetreuung und Mittagessen) * Mittelschule * Staatliche Realschule * Balthasar-Neumann-Gymnasium * Förderschulen * Staatliche Fachoberschule und Berufsoberschule * Bildungszentrum für Pflegeberufe Alten- und Krankenpflegeschule * Volkshochschule
    Quelle: hp Stadt MAR
  • Aufzug, Bad mit Fenster, Balkon, Erdgeschoß, Gas-Etagenheizung, Hausmeisterservice, Markise, Waschmaschinenanschluß im Keller

    • Befeuerung: Gas
    • Energieausweis-Art: Verbrauch
    • Energieausweis gültig bis: 24.01.2030
    • Energieverbrauchskennwert: 155,64 kWh/(m²*a)
    • Warmwasser im Energieverbrauch enthalten: ja
    • Primärenergieträger: Gas
    • Energieeffizienzklasse: E
    • Baujahr (Energieausweis): 1980
    • Energieausweis-Ausstellungsdatum: 24.01.2020
    • Energieausweis-Jahrgang: ab Mai 2014
    • Energieausweis-Gebäudeart: Wohngebäude
    • Kaufpreis: 245.000 €
    • Preise zuzüglich Mehrwertsteuer: nein
    • Käuferprovision: 3,57% Käuferprovision incl. MWSt.

Dein Ansprechpartner bei uns

Hendrik Hagenbucher

Sicher!